使用快速图纸页模板
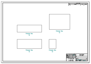
对于 青翼 CAD 3D 模型,快速图纸页模板是一种特殊类型的模板,可以使用它来快速生成 3D 视图。快速图纸页模板是一个图纸模板,它包含未链接到模型的图纸视图。当使用快速图纸页模板打开文档时,结果如下所示:

您可以“库”停靠窗口或从 Windows 资源管理器中将模型拖放到模板上,然后视图将通过此模型进行填充。
要创建快速图纸页模板,请配置您想要的图纸视图的类型和属性,然后选择“创建快速图纸页模板”命令。将显示一个消息框,建议您在清空图纸视图之前保存当前的工作。当您单击“是”后,可以用所需的名称或位置保存文件,这样,“快速表格”模板就可以使用了。创建“快速图纸页”模板时,将会清空所有图纸页上的图纸视图,包括零件明细表。几乎所有的视图属性(包括常规属性、文本和颜色属性和注释属性)都保留下来。
要了解如何执行此操作,请尝试快速图纸页练习。
要了解更多有关创建图纸视图的常用信息,请参阅“帮助”主题图纸视图创建。
© 2021 UDS