技术亮点
第六十四期|青翼CAD二维图——模型属性映射
浏览次数:1462发布时间:2022-12-25
字体大小: 【小】 【中】 【大】
当工程师构建好了三维模型,进行二维出图的过程中,是否有遇到制图內很多文本内容需要手动填写,而部分需要填写的内容在模型创建过程中已经设置为属性或是出现在了模型的相关表达式內,这时候再次手动填写内容不但繁琐浪费时间,而且可能出现填写错误的情况。
这时候在青翼CAD內,率先定制好我们的制图模板,到时候直接引用,就可以即准确又高效的来创建二维图纸。
那么就请大家一起打开我们的青翼CAD软件,来试一试模型的属性映射操作吧。
1 进行制图內模型属性映射之前需要在对应的三维模型內创建需要映射的属性

图1 创建模型內必要属性
2 找到青翼CAD安装目录下的图纸模板文件并打开,以后每次直接调用创建好的模板文件

图2 打开青翼CAD图纸模板
3 将带有需要映射属性的模型添加视图至打开的制图模板內

图3 添加带有属性的模型视图
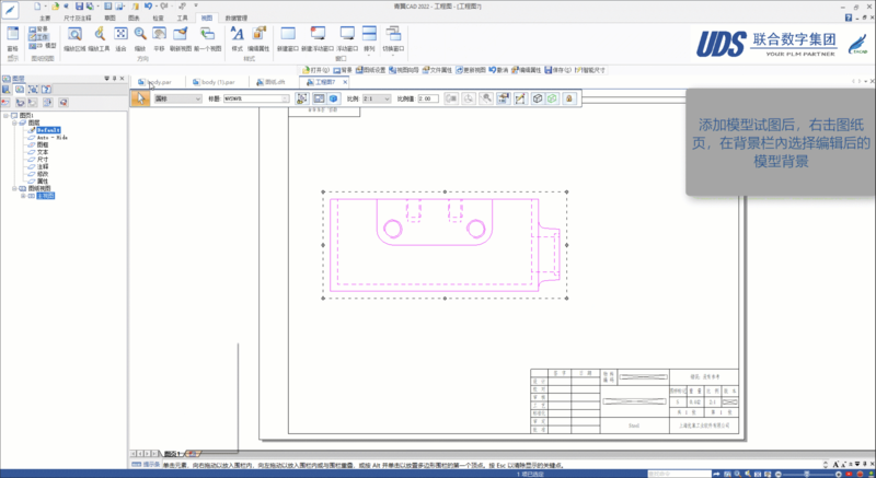
4 点击制图模块內的背景功能,进入模板的制图背景內进行编辑,背景的编辑相当于对各类型图纸大小的模板的编辑

图4 点击背景功能进行编辑
5 使用制图模块內的标注命令,点击属性文本功能,选择需要进行映射的模型内属性

图5 选择需要映射的模型属性
6 完成标注内容的添加后,调整添加的标注文本的宽高及位置使其放置在图纸內的对应图框位置內

图6 调整标注文本及位置
7 完成标注创建后,退出制图模板背景并删除添加的模型视图进行保存,切换至需要创建二维图纸的模型进行模型属性映射的测试

图7 完成模板并测试映射

欢迎扫码关注青翼CAD
获取更多精彩资讯