技术亮点
第七十八期|青翼CAD——提高图纸尺寸标注效率
浏览次数:1669发布时间:2023-04-22
字体大小: 【小】 【中】 【大】
一张完整的工程图除了必须的视图外,还要有尺寸标注、加工信息和技术要求等内容。青翼CAD工程图模块,提供了多种信息标注,可方便地进行尺寸、加工信息、注释、文本、表格等标注。包括我们最常用的倒角标注、表面粗糙度、形位公差、基准、技术要求等等。
青翼CAD工程图提供的多种标注方式,可以轻松完成工程图标注,大大提高我们的工作效率。
下面通过一个实例来具体演示青翼CAD是如何从模型快速标注工程图。
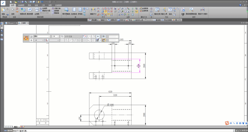
1 本次实例工程图如下图所示
可以看到,这张工程图中除了常规的尺寸标注,还有公差带、孔标注、基准、形位公差、表面粗糙度、等等;本次实例主要介绍如何使用工程图中的命令快速标注。

图1 工程图
2 点击“当前模型的图纸”,选择图纸模版,点击“视图向导”,定制主视图,选择视图比例或输入比例值

图2 新建视图
3 调入尺寸
使用“自动中心线”在选定视图上自动创建中心线和中心标记;
使用“调入尺寸”将建模尺寸复制到选定视图(注意:“调入尺寸”复制的尺寸,不能直接修改尺寸类型);
使用“附加尺寸”修改尺寸类型;
使用“复制属性”将一个尺寸类型复制到另一个尺寸;
使用“alt+鼠标左键”拖动尺寸。

图3 调入尺寸
4 智能尺寸标注
使用智能尺寸标注缺失尺寸(尺寸类型可直接修改),标注孔时,尺寸类型选择“特征标注”;
使用“倒斜角尺寸”标注倒角。

图4 智能尺寸标注
5 点击“标注”,定义标注文本,通过添加直径、深度等特殊字符标注孔信息
孔注释信息前输入“%QC”,系统会自动统计共面孔数量。

图5 标注注释
6 尺寸标注完成后,标注加工信息
点击“表面纹理符号”,选择符号类型“机加工”,标注加工花;
点击“基准框”,点击“属性”,将端符类型改为“锚点(实心)”,标注基准A和基准B;
点击“特征控制框”,标注形位公差,添加基准A和基准B的属性映射,添加完成后,修改基准名称,对应形位公差中的基准名称随之改变。

图6 加工信息标注
7 点击“排列尺寸”,框选尺寸,点击“确定”,系统自动排列尺寸、创建对齐;右键尺寸,点击“拆分对齐集”,可取消尺寸对齐关系

图7 排列尺寸
通过以上实例不难看出,青翼CAD工程图中的“调入尺寸”功能能够将建模尺寸复制到所选视图,减少工作量;使用“排列尺寸”功能,系统自动排列标注尺寸,创建对齐,改善工程图美观性。青翼CAD提供的多种标注方式,能够轻松完成工程图标注,大大提高工作效率。

欢迎扫码关注青翼CAD
获取更多精彩资讯