技术亮点
第九十五期|青翼CAD图纸参数化设计——哑图制作
浏览次数:698发布时间:2023-09-03
字体大小: 【小】 【中】 【大】
在一些参数化设计的项目中,经常会用到哑图,比如三维模型中没有做焊接特征,但是需要在图纸中展示焊接的结构型式和尺寸,且要与三维模型相关联,这时候便可以使用“哑图”来满足这一需求。
如果已经有CAD图形文件,那么就不需要从头开始创建哑图,而是直接利用已有的图形在青翼中进行修改,便可以快速地创建哑图,并且可以通过修改变量表中相关的变量,实现哑图的自动更新。
接下来,本篇文章将为您介绍如何使用青翼CAD进行哑图相关的参数化设计。
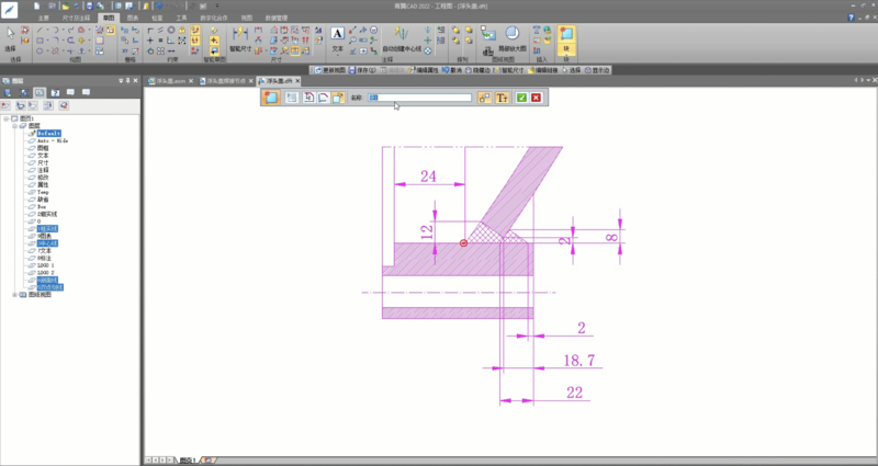
1 打开DWG图纸,将图形复制到图纸中

2 利用智能选择命令,快速选择需要修改样式的线条,将线条和阴影线修改为企业所需的样式

3 使用尺寸标注命令,尺寸类型选择“空白”,为图形标注尺寸

4 打开“标注”命令,依次选择“属性文本”、“索引参考”,复制需要的定制属性文本,将其粘贴到前缀下方的文本框中,按照同样的步骤给其他尺寸添加属性文本

5 选中所有元素,点击“块”命令——确认,选择某个点作为图块的原点,输入块的名称——确认,图块创建完毕

6 打开对应的模型,打开“变量表”,修改参数的值,图块中的属性文本也会随之更新

青翼CAD可以有效地利用企业已有的CAD图纸,使设计人员更加高效地创建哑图,且与三维模型相关联。通过修改变量表中相关的变量,实现哑图的自动更新。

欢迎扫码关注青翼CAD
获取更多精彩资讯